ZWEIFAMILIENHAUS IM GROSSEN STIL*********
Zusätzliche Informationen
In jedem unserer Häuser steckt die Erfahrung aus über 90 Jahren Pionierarbeit. In vielen Bereichen waren und sind wir Vorreiter, stets visionär und innovativ. Doch bei allem, was wir tun, steht eins immer an oberster Stelle: der Wunsch des Kunden. Bauen mit OKAL Haus - Preissicherheit, Fertigstellungsgarantie & alles aus einer Hand. Lassen Sie uns gemeinsam Ihr neues Zuhause planen! Hinweis: Zur Angabe Ihrer vollständigen Kontaktdaten nutzen Sie bitte, gemäß den Bestimmungen der Europäischen Datenschutzgrundverordnung (DSGVO) und des Bundesdatenschutzgesetzes (BDSG), das Kontaktformular neben der Anzeige.
Beschreibung
Großzügiges Wohnerlebnis mit Einliegerkonzept.
Das ZWEIRAUM 9 mit dem klassischen Walmdach definiert Familienwohnen neu. Auf zwei Etagen entfaltet sich ein durchdachtes Raumprogramm, das selbst höchsten Ansprüchen gerecht wird. Ein weitläufiger Wohn-Ess-Bereich mit offener Küche bildet das gesellschaftliche Zentrum im Parterre.
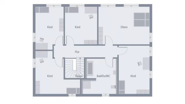
Das Obergeschoss überzeugt mit fünf Individualräumen und einem großzügigen Duschbad als private Etage.
Besonderes Highlight ist die separate Einliegerwohnung im Erdgeschoss - eine ideale Lösung für Mehrgenerationenwohnen oder zur Steigerung der Rentabilität durch Vermietung.
Lage
Gerbitz, ein Ortsteil von Nienburg (Saale), überzeugt durch seine ruhige und naturnahe Lage mit dörflichem Charakter. Die Städte Nienburg (ca. 5 km) und Bernburg (ca. 7 km) sind schnell erreichbar und bieten eine gute Infrastruktur mit Einkaufsmöglichkeiten, Schulen, Ärzten und Apotheken. Eine Kindertagesstätte befindet sich im Ort, weitere Einrichtungen sind in der näheren Umgebung vorhanden. Dank der guten Anbindung an die A14 sowie regionale Straßen ist auch eine schnelle Erreichbarkeit der umliegenden Städte gewährleistet.- Energietyp
- ::NEUBAUSTANDARD::
Fragen Sie uns
Bekomme Information oder vereinbare einen Termin
betreffend Objekt