VIER WOHNEINHEITEN - Raumkomfort auf hohem Niveau*
Zusätzliche Informationen
Innovative Pioniere, die bereits 1928 den Grundstein für unseren heutigen Erfolg legten, und erfahrene Mitarbeiter, die Tag für Tag daran arbeiten, unsere hohen Qualitätsziele zu übertreffen - das ist OKAL! Vor mehr als 90 Jahren gegründet, streben wir auch heute noch danach, neuste Entwicklungen als Vorreiter der Branche voranzutreiben und unseren Kunden so einen vollumfänglichen Service anzubieten, der unsere jahrelange Erfahrung mit den modernen Ideen von morgen vereint. Nachhaltig, innovativ, verlässlich - für uns nicht nur leere Worte, sondern gelebte Philosophie, die sich in einem jeden OKAL-Premiumhaus widerspiegelt.
Beschreibung
Dieses Haus wird in der Ausbaustufe bezugsfertig incl. Grundstück angeboten.
Diese Anzeige wurde auf einem realen Grundstück projektiert.
Wir bitten um Ihr Verständnis, dass nur Anfragen, die Namen, Adresse, Telefonnummer und E-Mail-Adresse beinhalten, beantwortet werden.
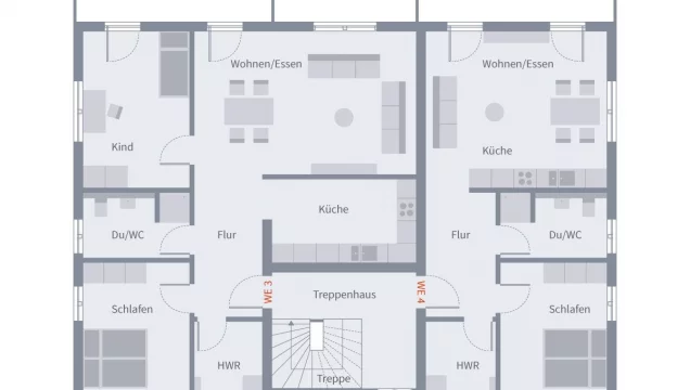
Dieses moderne Mehrfamilienhaus bietet vier unterschiedlich große, großzügig und offen gestaltete Wohneinheiten, die sich ideal für Familien, Paare oder Einzelpersonen eignen. Im Erdgeschoss befinden sich zwei barrierefreie Wohnungen, um den Bedürfnissen von Menschen mit eingeschränkter Mobilität gerecht zu werden. Diese Einheiten bieten leichten Zugang und komfortables Wohnen ohne Hindernisse. Beide Erdgeschosswohnungen bestechen durch ein offenes Raumkonzept, das viel Platz für individuelle Gestaltungsideen lassen. Im Obergeschoss befinden sich die beiden anderen Wohneinheiten, die jeweils über einen eigenen Balkon verfügen. Diese bieten einen wunderbaren Rückzugsort im Freien und laden dazu ein, die frische Luft zu genießen. Alle Einheiten zeichnen sich durch helle, lichtdurchflutete Räume aus, die eine freundliche und einladende Atmosphäre schaffen.
Lage
Das angebotene Grundstück befindet sich in Dresden-Großzschachwitz - einem charmanten und familienfreundlichen Stadtteil im Südosten der Elbmetropole. Die Lage überzeugt durch ihre ausgezeichnete Infrastruktur und das angenehme Wohnumfeld in naturnaher Umgebung.Verkehrsanbindung:
Dank der guten Anbindung an den öffentlichen Nahverkehr - insbesondere durch die Buslinien 65, 86 und 88 sowie die nahegelegenen S-Bahn-Stationen Dresden-Zschachwitz und Dresden-Niedersedlitz - sind sowohl das Dresdner Stadtzentrum als auch umliegende Stadtteile schnell erreichbar. Die Autobahn A17 ist in wenigen Fahrminuten zugänglich und sorgt für optimale regionale und überregionale Erreichbarkeit.
Einkaufsmöglichkeiten:
Für den täglichen Bedarf stehen in unmittelbarer Nähe zahlreiche Einkaufsmöglichkeiten zur Verfügung. Das Zschach Center bietet Supermärkte, Fachgeschäfte und gastronomische Angebote. Weitere Einkaufsmöglichkeiten finden sich entlang der Pirnaer Landstraße und der Bahnhofstraße.
Ärzte & Gesundheit:
Großzschachwitz bietet eine ausgezeichnete medizinische Versorgung mit mehreren Allgemeinmedizinern, Fachärzten, Apotheken sowie weiteren Gesundheitsdienstleistern - allesamt bequem erreichbar.
Bildung & Betreuung:
Familien profitieren von einem breiten Bildungsangebot: In der Umgebung befinden sich mehrere Kitas, die 92. Grundschule "An der Aue" sowie weiterführende Schulen wie die Christliche Schule Dresden. Öffentliche Einrichtungen wie Bibliotheken und Sportvereine ergänzen das Angebot für Kinder und Jugendliche.
Freizeit & Erholung:
Die naturnahe Lage am Lockwitzbach und die Nähe zur Elbe bieten ideale Bedingungen für Spaziergänge, Radfahren und Erholung im Grünen. Der Elberadweg sowie der Schlosspark Pillnitz sind beliebte Ausflugsziele. Zudem laden zahlreiche Spielplätze und Grünanlagen zum Verweilen ein.
Fazit:
Großzschachwitz kombiniert ruhiges Wohnen mit urbaner Lebensqualität - ideal für Familien, Paare und Senioren. Hier genießt man ein hohes Maß an Lebensqualität in einem gut angebundenen, gepflegten Umfeld.
Daten
- Kaufpreis : 1.412.900,00 €
- Räume: 10.00
- Größe: 377,16 m2
- Objekt Typ: Haus
- Energie:
- *
- *
Fragen Sie uns
Bekomme Information oder vereinbare einen Termin
betreffend Objekt