Sicherheit dank Festpreisgarantie : 5 Zimmer auf 140 qm in Zeuthen
Zusätzliche Informationen
Leichter finanzieren. Sicher einziehen.
Mit bis zu 49.000 EUR Preisvorteil für Ihr neues Zuhause.
Sichern Sie sich einen unschlagbaren Preisvorteil von bis zu 49.000 EUR auf unsere Aktionshäuser.*
Wir möchten Ihnen nicht nur ein Haus, sondern ein Zuhause schaffen, in dem Sie sich rundum wohlfühlen. Um dieses Ziel zu erreichen haben wir exklusive Häuser für Sie ausgewählt, die nicht nur dank des unschlagbaren Aktionspreises attraktiv sind, sondern sich auch durch ihre herausragende Qualität und ihr zeitloses Design auszeichnen.
Beschreibung
Attraktives Einfamilienhaus in Zeuthen - sicher planen mit Festpreisgarantie
Dieses moderne Einfamilienhaus in Zeuthen überzeugt durch ein attraktives Preis-Leistungs-Verhältnis, eine verlässliche Festpreisgarantie und ein durchdachtes Raumkonzept für die ganze Familie. Mit rund 140 m² Wohnfläche und 5 Zimmern bietet das Haus ausreichend Platz zum Wohnen, Arbeiten und Entspannen - ideal für Familien, Paare oder sicherheitsbewusste Bauherren.
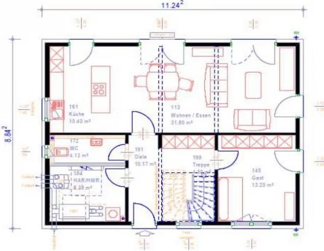
Bereits die ansprechende Fassade macht das Haus zu einem echten Blickfang. Im Inneren erwartet Sie ein helles und freundliches Wohnkonzept: Von der zentralen Diele gelangen Sie in die Küche mit offenem Wohn- und Essbereich, der durch große Fensterflächen viel Tageslicht erhält und ein angenehmes Wohngefühl schafft. Mehrere Zugänge ins Freie sorgen zusätzlich für Licht, Luft und ein hohes Maß an Wohnkomfort.
Im Erdgeschoss befinden sich neben dem großzügigen Wohnbereich ein Gäste-WC, ein praktischer Hauswirtschaftsraum sowie ein weiteres Zimmer, das flexibel als Gästezimmer, Büro oder Hobbyraum genutzt werden kann. Über die Treppe in der Diele erreichen Sie das Obergeschoss.
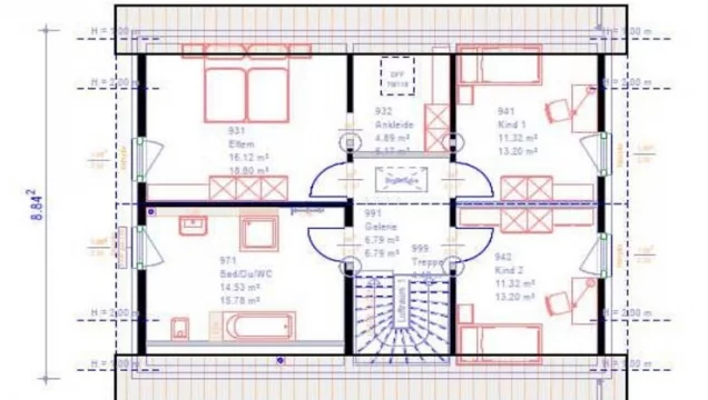
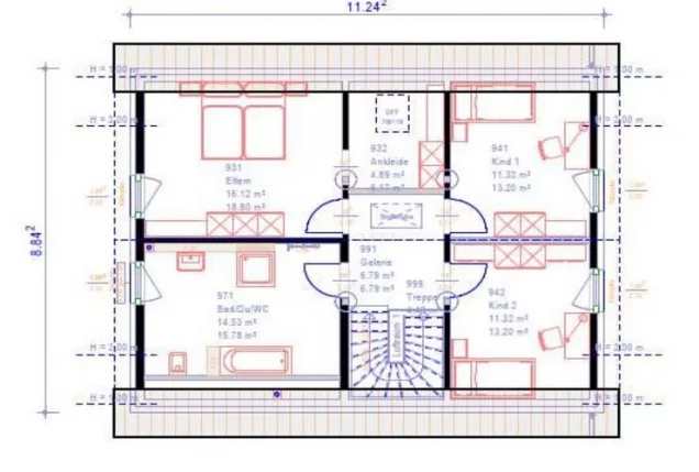
Hier stehen Ihnen ein ruhiger Elternbereich sowie zwei weitere Zimmer zur Verfügung, die sich ideal als Kinder-, Schlaf- oder Arbeitszimmer eignen. Ein modernes, geräumiges Badezimmer rundet das Raumangebot ab.
Besonderen Wert legt dieses Angebot auf Planungssicherheit: Dank Festpreisgarantie behalten Sie jederzeit die volle Kostenkontrolle. Hochwertige Bauweise und moderne Sicherheitsstandards sorgen für ein dauerhaft sicheres und solides Zuhause in attraktiver Lage von Zeuthen.
Lage
In diesem neu entstehenden Wohngebiet werden in Kürze unterschiedlich große Bauparzellen für Einfamilien- sowie Doppelhäuser angeboten. Die Grundstücke werden vollständig erschlossen übergeben - inklusive Wasser, Schmutzwasser, Strom, Telekommunikation und bei Bedarf auch Gas.Auch bei der Grundstücksgestaltung haben Sie Einflussmöglichkeiten. Während die Tiefe der Parzellen mit rund 30 Metern festgelegt ist, können Sie die Breite flexibel an Ihre Wünsche und Ihren Bedarf anpassen. Damit lässt sich die Gesamtgröße Ihres Grundstücks individuell variieren.
Mit einer ausgewiesenen Grundflächenzahl (GRZ) von 0,3 steht Ihnen zudem großzügiger Spielraum bei der Planung und Architektur Ihres künftigen Eigenheims zur Verfügung.
Aktuell werden Grundstücke ab einer Größe von ca. 470 m² angeboten.
Nutzen Sie die Chance, sich ein attraktives Baugrundstück in einer äußerst gefragten Wohnlage zu sichern und den Grundstein für Ihr neues Zuhause zu legen!
Wichtiger Hinweis: Aus Diskretionsgründen erhalten Sie detaillierte Informationen zum Grundstück ausschließlich in einem persönlichen Gespräch. Bitte beachten Sie, dass das Grundstück nur in Kombination mit einem individuell geplanten Bauprojekt mit OKAL Haus angeboten wird. Wir freuen uns darauf, Sie bei der Verwirklichung Ihres Traumhauses zu begleiten.
Daten
- Kaufpreis : 615.000,00 €
- Räume: 5.00
- Größe: 142,00 m2
- Objekt Typ: Haus
- Energie:
Fragen Sie uns
Bekomme Information oder vereinbare einen Termin
betreffend Objekt