SELTENE GELEGENHEIT - AUßERGEWÖHNLICHES OBJEKT TRIFFT LAGE !!!**

Beschreibung

OKAL hat das passende Baugrundstück für Sie!

Sie suchen den idealen Platz für Ihr neues Zuhause?
Dann haben wir genau das Richtige für Sie: ein attraktives Wohnbaugrundstück mit einer großzügigen Fläche von 715 m² - bereits im Gesamtpreis enthalten!

Dieses exklusive Grundstück bietet die perfekte Grundlage, um gemeinsam mit OKAL Ihren Traum vom Eigenheim zu verwirklichen. Profitieren Sie von unserer Erfahrung, unserer individuellen Planung und der hohen Bauqualität von OKAL.

Interessiert?
Dann lassen Sie uns gemeinsam den nächsten Schritt gehen!
Kontaktieren Sie uns noch heute - wir beraten Sie gern persönlich und zeigen Ihnen, wie Ihr neues Zuhause auf diesem Grundstück Wirklichkeit werden kann.

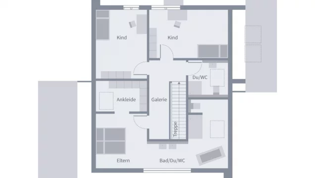
Im Erdgeschoss dieses Einfamilienhauses werden Sie von einem großzügigen und offenen Wohnzimmer empfangen, das nahtlos ins Esszimmer und anschließend in die Küche übergeht. Diese lichtdurchflutete Raumgestaltung sorgt für eine einladende Atmosphäre, die perfekt für gesellige Abende mit Familie und Freunden ist. Von hier aus gelangt man auch auf die Terrasse. Ein besonderes Highlight des Hauses ist das geräumige Carport, das nicht nur genügend Platz für Fahrzeuge bietet, sondern auch zusätzlichen Stauraum ermöglicht. Im Dachgeschoss befinden sich zwei helle Kinderzimmer, während ein gemeinsames Badezimmer zusätzlichen Komfort für die kleinen Bewohner bietet. Das große Schlafzimmer der Eltern ist ein Rückzugsort der besonderen Art, da es über ein integriertes Badezimmer und eine angrenzende Ankleide verfügt. Unser Design 13.2 kombiniert durchdachte Raumkonzepte mit modernen Designelementen und schafft so ein stilvolles sowie praktisches Zuhause.

Kontaktieren Sie uns

Lage

Großkorbetha - Wo Tradition und Moderne Hand in Hand gehen:

Großkorbetha, eine lebendige Gemeinde in Sachsen-Anhalt, ist ein Ort, an dem die bewahrte Tradition und die moderne Lebensweise eine harmonische Symbiose eingehen. In dieser umfassenden Lagebeschreibung werden wir einen detaillierten Blick auf die verschiedenen Aspekte dieser charmanten Gemeinde werfen, die sie zu einem ganz besonderen Ort zum Leben machen.

Infrastruktur:
Großkorbetha zeichnet sich durch eine hervorragende Verkehrsinfrastruktur aus. Die Gemeinde liegt in unmittelbarer Nähe zur Autobahn A9 und bietet somit eine schnelle Anbindung an Städte wie Leipzig und Halle (Saale). Der örtliche Bahnhof gewährleistet Zugverbindungen in die Umgebung und erleichtert die Mobilität.

Täglicher Bedarf:
Die Einwohner von Großkorbetha finden alles, was sie für ihren täglichen Bedarf benötigen, in der Nähe. Supermärkte, Fachgeschäfte und Wochenmärkte bieten eine breite Palette von Lebensmitteln und Produkten an. Die belebte Hauptstraße von Großkorbetha ist gesäumt von Geschäften, Restaurants und Cafés. Apotheken, Banken und Postämter sind ebenfalls gut erreichbar.

Kindergärten und Schulen:
Familienfreundlichkeit hat in Großkorbetha einen hohen Stellenwert. Die Gemeinde bietet eine Auswahl an Kindertagesstätten und Kindergärten, die sich liebevoll um das Wohl der jüngsten Bewohner kümmern. Eltern schätzen auch die Nähe zu Grundschulen sowie weiterführenden Schulen, darunter Sekundarschulen und Gymnasien. Die Bildungseinrichtungen in der Region sind für ihre Qualität und engagierte Lehrkräfte bekannt.

Freizeitmöglichkeiten:
Großkorbetha und seine Umgebung bieten zahlreiche Freizeitmöglichkeiten. Die ländliche Landschaft lädt zu Aktivitäten wie Wandern, Radfahren und Erholung ein. Die Gemeinde selbst fördert ein starkes Gemeinschaftsgefühl durch lokale Veranstaltungen, Feste und Aktivitäten. Sportvereine und Sportstätten bieten vielfältige Möglichkeiten für aktive Freizeitgestaltung.

Großkorbetha ist ein Ort, an dem Tradition und Moderne Hand in Hand gehen. Die hervorragende Infrastruktur, die Versorgung des täglichen Bedarfs, die kinderfreundlichen Einrichtungen und die vielfältigen Freizeitmöglichkeiten machen die Gemeinde zu einem einladenden Ort für all diejenigen, die das Leben in einer lebendigen und dennoch traditionsbewussten Umgebung schätzen.

Daten

  • Kaufpreis : 658.900,00 €
  • Räume: 5.00
  • Größe: 197,00 m2
  • Objekt Typ: Haus
  • Energie:
  • 18317-32924-1:
Details
Ausstattung
  • Energietyp
    • ::NEUBAUSTANDARD::
Kontaktieren Sie uns
Sie möchten mehr Informationen?
Fragen Sie uns

Bekomme Information oder vereinbare einen Termin

betreffend Objekt

SELTENE GELEGENHEIT - AUßERGEWÖHNLICHES OBJEKT TRIFFT LAGE !!!** [ ID CM_2025_11_364 ]