Haus mit separater Wohneinheit - flexibel nutzbar**
Zusätzliche Informationen
Innovative Pioniere, die bereits 1928 den Grundstein für unseren heutigen Erfolg legten, und erfahrene Mitarbeiter, die Tag für Tag daran arbeiten, unsere hohen Qualitätsziele zu übertreffen - das ist OKAL! Vor mehr als 90 Jahren gegründet, streben wir auch heute noch danach, neuste Entwicklungen als Vorreiter der Branche voranzutreiben und unseren Kunden so einen vollumfänglichen Service anzubieten, der unsere jahrelange Erfahrung mit den modernen Ideen von morgen vereint. Nachhaltig, innovativ, verlässlich - für uns nicht nur leere Worte, sondern gelebte Philosophie, die sich in einem jeden OKAL-Premiumhaus widerspiegelt.
Beschreibung
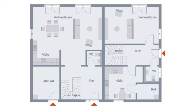
Erst auf den zweiten Blick erkennt man, dass unter dem Satteldach gleich zwei Häuser stecken. Mit unterschiedlichen Grundrissen und Größen entspricht die Planung nicht dem klassischen Doppelhaus. Während die eine Hälfte Raum für eine Familie mit bis zu zwei Kindern bietet, fühlen sich im etwas kleineren Haus Singles, Paare oder Familien mit nur einem Kind wohl. Ob Familienmitglieder mit einziehen oder fremdvermietet wird, entscheidet der Bauherr. Jedes Haus hat seinen eigenen Hauswirtschaftsraum. So wirtschaftet jeder autonom. Alle Räume überzeugen im typischen OKAL-Stil mit hohem Komfort, Großzügigkeit und viel Lichteinfall.
Kontaktieren Sie uns- Energietyp
- ::NEUBAUSTANDARD::
- Gäste WC
Fragen Sie uns
Bekomme Information oder vereinbare einen Termin
betreffend Objekt