Du lüftest mit Kippfenster zur Straße - und holst den Staub der Stadt rein: Design 13.2 atmet anders.*
Zusätzliche Informationen
Innovative Pioniere, die bereits 1928 den Grundstein für unseren heutigen Erfolg legten, und erfahrene Mitarbeiter, die Tag für Tag daran arbeiten, unsere hohen Qualitätsziele zu übertreffen - das ist OKAL! Vor mehr als 90 Jahren gegründet, streben wir auch heute noch danach, neuste Entwicklungen als Vorreiter der Branche voranzutreiben und unseren Kunden so einen vollumfänglichen Service anzubieten, der unsere jahrelange Erfahrung mit den modernen Ideen von morgen vereint. Nachhaltig, innovativ, verlässlich - für uns nicht nur leere Worte, sondern gelebte Philosophie, die sich in einem jeden OKAL Premiumhaus widerspiegelt.
Beschreibung
Saubere Luft, ruhiger Atem - Wohngesundheit, die sich jeden Tag spürbar leicht anfühlt.
Einfamilienhaus mit Satteldach in Schönwalde Glien (14621): 197,59 m² - EG 111,07 m², DG 86,51 m². Am Morgen fällt das Licht weit durch das offene Wohnzimmer bis in Küche und Essbereich, die Terrassentür steht einen Spalt offen, frische Luft zieht herein. Hier beginnt der Tag leicht, gemeinsam, mit Blick ins eigene Grün - wie fühlt sich das an, wenn Alltag so frei startet?
Über den Tag lädt der fließende Wohn-Ess-Kochbereich zu kleinen Pausen, spontanen Gesprächen und Besuch ein, während die Frischluft-Wärmtechnik das Klima leise reguliert. Mit rund 197,59 m² - exakt 197,59 m². EG 111,07 m², DG 86,51 m². Frischluft-Wärmtechnik (Standard), PV-ready. KfW-55 (optional KfW-40+). QDF/DGNB. Bauzeit 12-15 Monate - nachvollziehbar dokumentiert. Möchten Sie sehen, wie sich das anfühlt, wenn Raumplanung und Leichtigkeit so gut zusammenpassen?
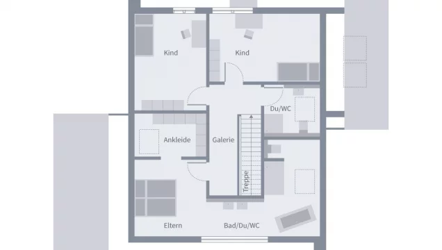
Im Erdgeschoss verbindet der großzügige Wohnbereich Wohnzimmer, Essplatz und Küche zu einem lebendigen Mittelpunkt; durch die Tür zur Terrasse duftet im Sommer der Grill, im Herbst rascheln Blätter am Carport vorbei. Der große Carport hält Fahrräder, Kinderwagen und Gartenspielzeug trocken bereit. Oben warten zwei helle Kinderzimmer, ein gemeinsames Bad und die Elternsuite mit eigenem Bad und Ankleide - ein Rückzugsort, der sich abends ruhig anfühlt. Vielleicht schnurrt eine Katze auf der Fensterbank, während Sie noch ein letztes Gespräch im Schlafzimmer führen - welcher Platz wird Ihr Lieblingsort?
Freunde kommen vorbei, Schuhe bleiben im Eingangsbereich, ein Karton steht noch im Flur, weil das nächste Projekt schon geplant ist. Am Esstisch wird gelacht, Türen zur Terrasse stehen offen, Kinder hüpfen barfuß zwischen drinnen und draußen - ein Heim, das Schritt für Schritt mit Ihnen wächst und Gemeinschaft feiert.
Kontakt direkt hier im Portal starten - wir melden uns freundlich und zeitnah zurück. Oder einen Termin im OKAL Musterhaus in Werder (Havel) vereinbaren und die Architektur live erleben; Direktkontakt:
Lage
Schönwalde-Glien verbindet die Nähe zu Berlin mit viel Grün im direkten Umfeld. Ab Bahnhof Brieselang, der aus 14621 Schönwalde-Glien per Bus erreichbar ist, sind es rund 30 Minuten bis Berlin Hauptbahnhof; in der morgendlichen Hauptverkehrszeit fährt im Schnitt etwa alle 30 Minuten ein Zug - tagesfest planbar. Schönwalde-Glien liegt außerhalb von Berlin im Landkreis Havelland (Brandenburg); über die Achsen A10, B5 und B273 bleibt der Großraum gut angebunden. Wäre es nicht angenehm, wenn eine Pendelzeit von ca. 30 Minuten bei etwa 30-Minuten-Takt verlässlich in Ihren Tagesrhythmus passt?Gleichzeitig bleiben Wege im Ort kurz: Hausarztpraxen in Schönwalde-Siedlung und Pausin, die Apotheke Schönwalde sowie ein Netto-Supermarkt im PLZ-Gebiet machen Besorgungen nachvollziehbar und alltagstauglich. Kitas im PLZ-Gebiet und Schulen im Stadtgebiet sind laut Gemeindeangaben vorhanden. Für draußen liegen Waldwichtelpfad und Strandbad Schönwalde direkt im Umfeld; als Freizeit-Highlight ergänzt der MAFZ Erlebnispark Paaren die Auswahl. So bleibt die Verbindung zur City klar strukturiert: ca. 30 Min. bis Berlin Hbf bei Takt ~30 Min., getragen von A10 · B5 · B273 - Alltag bleibt planbar.
Wo Sie sind: 14621 Schönwalde-Glien, Landkreis Havelland, Brandenburg
In die City: Berlin Hbf ca. 30 Min. ab Bhf Brieselang
Takt am Morgen: etwa alle 30 Min. - alltagstauglich
Mit dem Auto verbunden: A10 · B5 · B273
Alles für den Alltag: Hausarztpraxen · Apotheke Schönwalde · Netto-Supermarkt (Alter Wansdorfer Weg)
Für Familien: Kitas im PLZ-Gebiet · Schulen im Stadtgebiet
Grün & Wasser in Reichweite: Waldwichtelpfad · Strandbad Schönwalde / MAFZ Erlebnispark Paaren
Internet & Netz: stabil nutzbar; Glasfaser punktuell, 4G/5G je nach Anbieter
Verlässlich eingeordnet: Lage laut kommunaler/amtlicher Karte dokumentiert
Stand: 2025-11-08
------------------
OKAL Grundstücksservice - Der richtige Ort für Ihr Traumhaus
"Ein Zuhause braucht mehr als vier Wände - es braucht den richtigen Platz."
Seit nahezu einem Jahrhundert schaffen wir Orte, an denen Menschen nicht nur wohnen, sondern wirklich zuhause sind.
Manchmal beginnt das mit einem stillen Morgen: sanftes Licht fällt über Felder, Wasser oder Dächer, irgendwo rauscht der Wind leise durch die Bäume.
Der Blick bleibt an einer Landschaft hängen, die sich anfühlt, als hätte sie schon immer auf Sie gewartet - stimmig in jedem Detail.
Wäre es nicht beruhigend zu wissen, dass genau so ein Platz auch für Ihr Traumhaus gefunden werden kann?
Mit dem OKAL Grundstücksservice entfällt für Sie die mühsame Suche und die Unsicherheit bei der Auswahl.
Wir hören zu, verstehen Ihre Vorstellungen und öffnen Ihnen den Zugang zu Möglichkeiten, die anderen verborgen bleiben.
Jede Option wird sorgfältig geprüft - kein Detail bleibt dem Zufall überlassen, alles ist nachvollziehbar und auf Ihre Pläne abgestimmt.
Und fühlt es sich nicht gut an, wenn Lage, Größe und Umgebung von Anfang an genau passen?
Ob mitten im Leben, ruhig im Grünen oder mit weitem Blick - wir begleiten Sie Schritt für Schritt, bis der passende Ort gefunden ist.
Die besten Grundstücke sind oft nur kurze Zeit verfügbar - wir sorgen dafür, dass Sie rechtzeitig erfahren, wenn sich Ihre Chance bietet.
Dabei verbinden wir Erfahrung, Marktkenntnis und ein starkes Partnernetzwerk mit dem Anspruch, Ihnen ein Zuhause zu schaffen, das in jeder Hinsicht zu Ihnen passt.
OKAL - mehr als ein Haus, mehr als ein Grundstück: Ihr vollständiges Zuhause.
Mit dem OKAL G...
Daten
- Kaufpreis : 733.600,00 €
- Räume: 5.00
- Größe: 197,00 m2
- Objekt Typ: Haus
- Energie:
Fragen Sie uns
Bekomme Information oder vereinbare einen Termin
betreffend Objekt